Interieur
Skillslab Universiteit Maastricht

In het Skillslab vindt de ontwikkeling en uitvoering van het vaardigheidsonderwijs voor studenten Geneeskunde plaats. Het betreft een breed scala van vaardigheden, variërend van communicatievaardigheden tot medisch-technische vaardigheden. Met deze vaardigheden kunnen de studenten Geneeskunde zich voorbereiden op de praktische vaardigheden van een patiëntcontact. Het vaardighedenonderwijs is nauw afgestemd op de diverse blokken, clusters en stages. Hiertoe wordt overleg gevoerd met de diverse planningsgroepen. De trainingen worden begeleid door docenten.
bestaand-nieuw

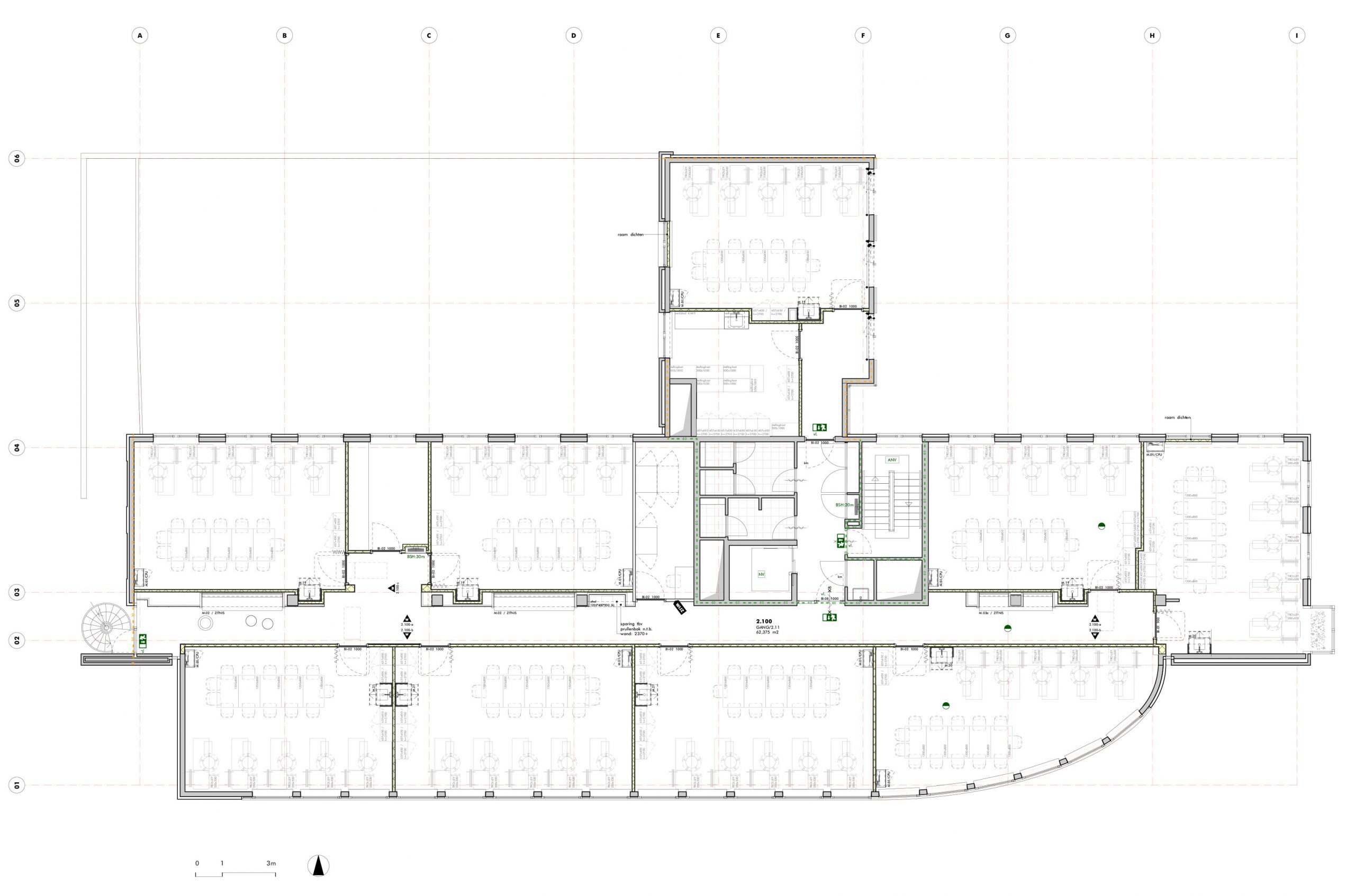
iNeXarchitecten heeft het bestaande kantoorpand heringericht en geschikt gemaakt voor gebruik als onderwijsinstelling. Het beschikbare vloeroppervlak is maximaal ingezet om alle onderwijskamers, labs, learning spaces en ruimtes voor het personeel een plek te geven. Extra aandacht is hierbij besteed om de gangen ondanks de beperkte breedte en hoogte genoeg verblijfskwaliteit te geven. Naast het bouwkundig ontwerp is ook het interieur in nauw overleg met de faculteit onderhanden genomen en geschikt gemaakt voor de toekomst.

Extra aandacht is hierbij besteed om de gangen ondanks de beperkte breedte en hoogte genoeg verblijfskwaliteit te geven. Naast het bouwkundig ontwerp is ook het interieur in nauw overleg met de faculteit onderhanden genomen en geschikt gemaakt voor de toekomst.